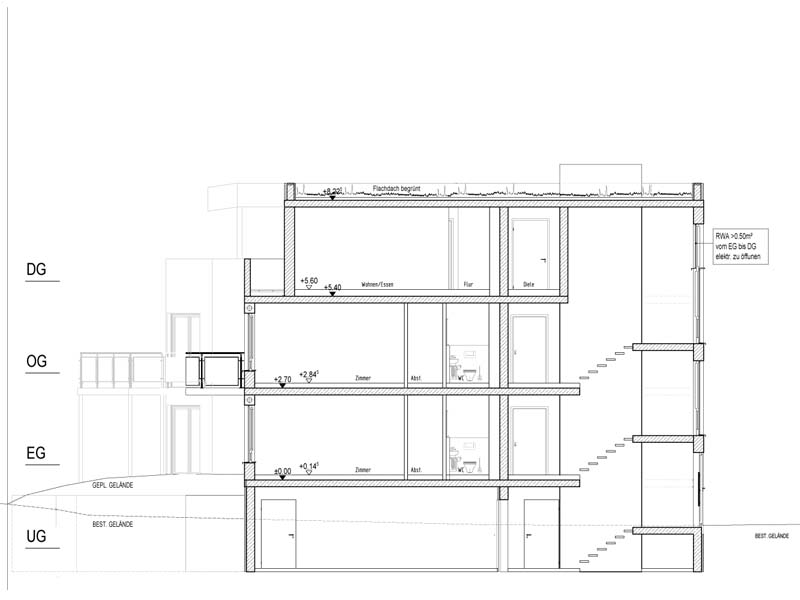
2016 - 2017

Wohnanlage - Reutlingen

Architekt

Exklusiv Wohnwert GmbH
Bauherr
Exklusiv Wohnwert GmbH

Leistung

Tragwerksplanung

Umbauter Raum

ca. 7900 m³